Operatie Bomenbuurt: voorlopig ontwerp duurt langer
Het voorlopig ontwerp voor Operatie Bomenbuurt is later klaar dan gepland. De gemeenteraad gaf in februari 2026 extra opdrachten.

Wij gebruiken DeepL om deze website te vertalen.
Wij zijn niet verantwoordelijk voor de juistheid van de vertaling.
Denk en doe mee om Segbroek nog fijner te maken. Lees het laatste nieuws en bekijk plannen.

De gemeente vervangt het riool in de Bomenbuurt. Hierdoor kan zij ook de straten en pleinen opnieuw inrichten.
De buurt dacht vanaf het begin mee over de nieuwe inrichting. Dit was in het Bomenbuurtberaad. En bij het meedenken over de ontwerpen van de 1e 7 straten. Door 3 aanvullende opdrachten van de gemeenteraad loopt dit proces nu vertraging op.
Bewoners noemen de Bomenbuurt een dorp in de grote stad. Veel bewoners wonen hier al lang. Of komen na een aantal jaar weer terug naar de buurt. Het gevoel van een dorp binnen de grote stad komt door de sociale samenhang in de buurt. En de goede leefbaarheid door veel voorzieningen in de buurt, maar ook veel groen dichtbij. De Bomenbuurt heeft ook een eigen identiteit met het ontwerp van Berlage. Dit zorgt voor bijzondere plekken in de wijk.
De Bomenbuurt werd ontworpen voordat er (veel) auto’s waren. Parkeren en verkeersveiligheid waren toen nog geen grote thema’s. Ook van hittestress en wateroverlast was nog geen sprake. Nu houdt de gemeente wel rekening met deze onderwerpen. Bewoners vinden vergroening en verduurzaming dan ook belangrijk.

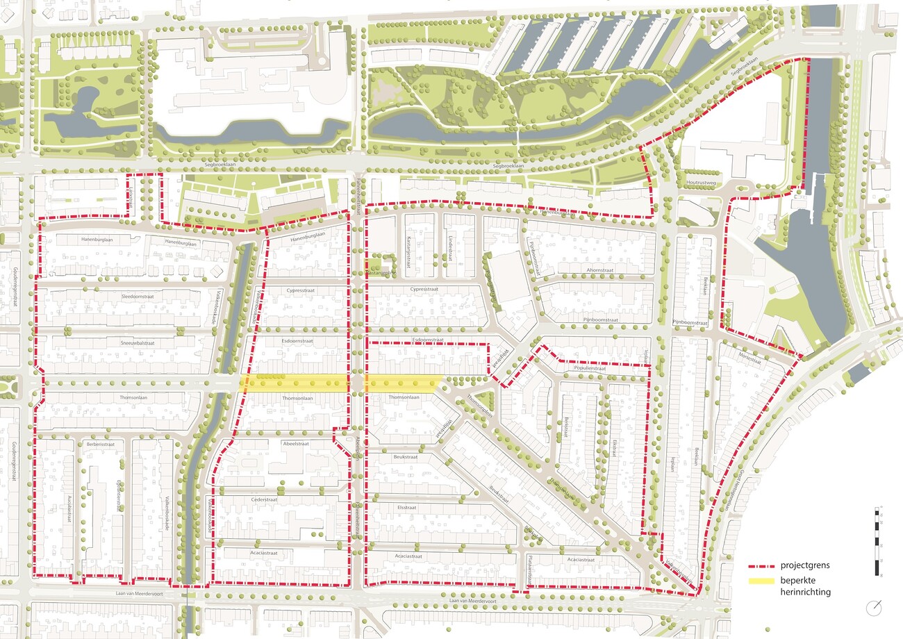
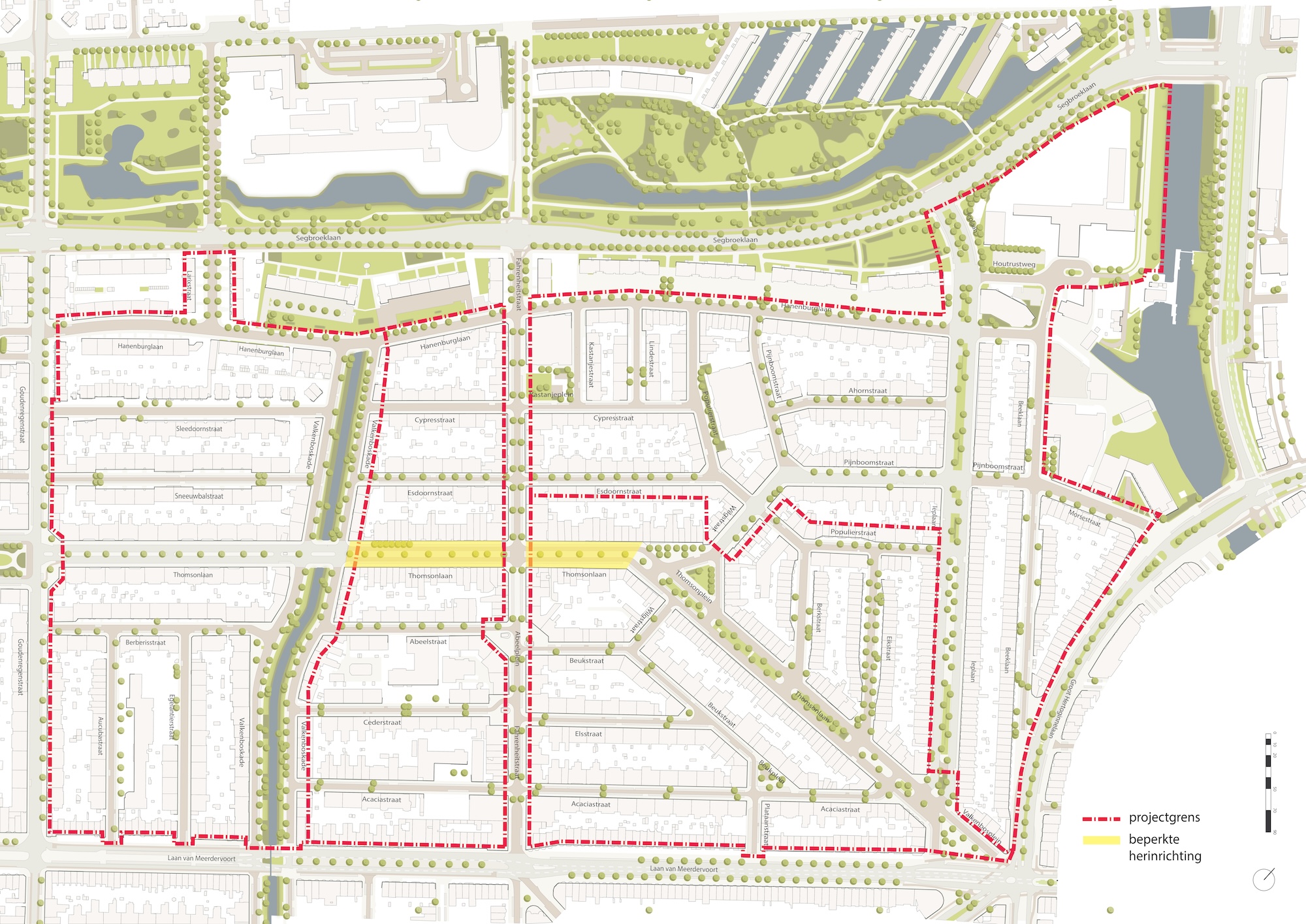
Bij Operatie Bomenbuurt werkt de gemeente samen met bewoners, belanghebbenden, scholen en ondernemers. Met als doel de wijk na de rioolvervanging veiliger, groener en duurzamer te maken. In overleg met de buurt worden 29 straten en 4 pleinen vernieuwd en klaargemaakt voor de toekomst.
De buurt dacht vanaf het begin mee, al bij de 1e aankondiging van de rioolvervanging in 2011. Daarna met de wijkagenda Bomen- en Bloemenbuurt 2020 -2024 en vervolgens in het Bomenbuurtberaad. Bekijk de documenten:
Bewoners kennen hun buurt het best. Daarom maakte het Bomenbuurtberaad een advies. Bij 4 bijeenkomsten maakten zij keuzes over veel onderwerpen. Bijvoorbeeld spelen, verkeer, parkeren, wandelen, de pleinen, groen, en meer. De bewoners en ondernemers willen dat de wijk veilig en duurzaam is. En fijn voor alle buren. Door bijvoorbeeld:
Het advies van het Bomenbuurtberaad werd op 2 onderwerpen na (historische straatpalen en half verdiepte fietsenstalling) helemaal overgenomen in het Programma van Eisen.
Begin maart 2026 heeft de gemeenteraad ingestemd met het raadsvoorstel voor de Operatie Bomenbuurt. De raad sprak daarbij veel waardering uit voor het werk van het Bomenbuurtberaad, het opgeleverd advies en de samenwerking tussen gemeente en bewoners
Eind februari 2026 gaf de gemeenteraad het projectteam 3 extra opdrachten. Het maken van een voorstel voor:
Wat dit precies voor het project betekent zoekt het projectteam nu uit. Een nieuwe wethouder heeft een belangrijke rol in het besluit hoe het project verder gaat.
Lees meer over de moties op: Begin externe link: Vergadering Gemeenteraad 26-02-2026 Gemeente Den Haag(Externe link), eind externe link.
De gemeente hoort graag van bewoners en andere belanghebbenden wat zij voor hun straat belangrijk vinden. Bijvoorbeeld:
Bij iedere straat kunt u over andere dingen meedenken. Soms zijn er regels voor de straat. Of willen bewoners verschillende dingen. Dan praat de gemeente met iedereen. En zoekt zij uit wat de meeste bewoners willen.
Ook kunt u niet uw mening en advies geven over een ondergrondse fietsenstalling. Dit is geen onderdeel van de straataanpak van de gemeente.
De gemeente gebruikt de reacties om een voorlopig ontwerp te maken. Dit doet zij ook met hulp van straatvertegenwoordigers bij werksessies. Bewoners kunnen reageren op het voorlopig ontwerp door een zienswijze in te dienen.
In 2025 konden de bewoners van de Abeelstraat, Acaciastraat, Cederstraat, Cypresstraat, Esdoornstraat, Hanenburglaan en Thomsonlaan (het deel tussen de Fahrenheistraat en Valkenboskade) meedenken.
Het Bomenbuurtberaad vertelde wensen en ideeën over onderwerpen:
Met deze wensen en ideeën maakte de gemeente een tekening (schetsontwerp) voor de 1e 7 straten. Hierin staat bijvoorbeeld:
De gemeente werkt samen met straatvertegenwoordigers de tekeningen verder uit. Nu wordt het Voorlopig Ontwerp voorbereid. Dit proces loopt vertraging op.
De gemeente maakte voor de 1e 7 straten een 1e tekening per straat. Hierop staat:
Bewoners en belanghebbenden konden vertellen wat zij belangrijk vinden voor hun eigen straat:
Met straatvertegenwoordigers zijn de tekeningen verder uitgewerkt. Nu wordt gewerkt aan het Voorlopig Ontwerp. Dit proces is vertraagd door 3 aangenomen moties en de verkiezingen.
De gemeente werkt voor de nieuwe inrichting van de Bomenbuurt samen met bewoners, ondernemer, scholen en bewonersorganisaties:
De Bomenbuurt is ongeveer 100 jaar oud. Operatie Bomenbuurt wil ruimte maken voor alle mensen in de wijk. Daarom moeten gemeente, bewoners en belanghebbenden kiezen wat zij belangrijk vinden.
Dit staat al vast voor de herinrichting:
Sommige dingen wil de gemeente nu al aanpakken. In het advies van het Bomenbuurtberaad staan een aantal ‘quick wins’. Dit zijn kleine verbeteringen die de gemeente snel kan uitvoeren. Bijvoorbeeld:
Het voorlopig ontwerp voor Operatie Bomenbuurt is later klaar dan gepland. De gemeenteraad gaf in februari 2026 extra opdrachten.

Wilt u meer weten over de ontwikkelingen? Meld u aan voor de digitale nieuwsbrief. Stuur een e-mail naar Begin link: operatiebomenbuurt@denhaag.nl, einde link. met onderwerp ‘nieuwsbrief Bomenbuurt’.
Heeft u een vraag over dit project? Stuur een e-mail naar Begin link: operatiebomenbuurt@denhaag.nl, einde link..